Sold

Views and Potential for Future Expansion

This property is ready to start and will qualify for the Home Builder Grant (if you are eligibable)

This yet to be built house will have great views of the treeline and Valley Beyond- from the large entertaining deck.

As well there is a large paved area under with vehicle access from the adjacent driveway. This would permit storage of trailers, cars,boats etc - or could be a downstairs entertaining area poolside - and - could be built in at some stage when finances permit as a granny flat or apartment or kids zone.

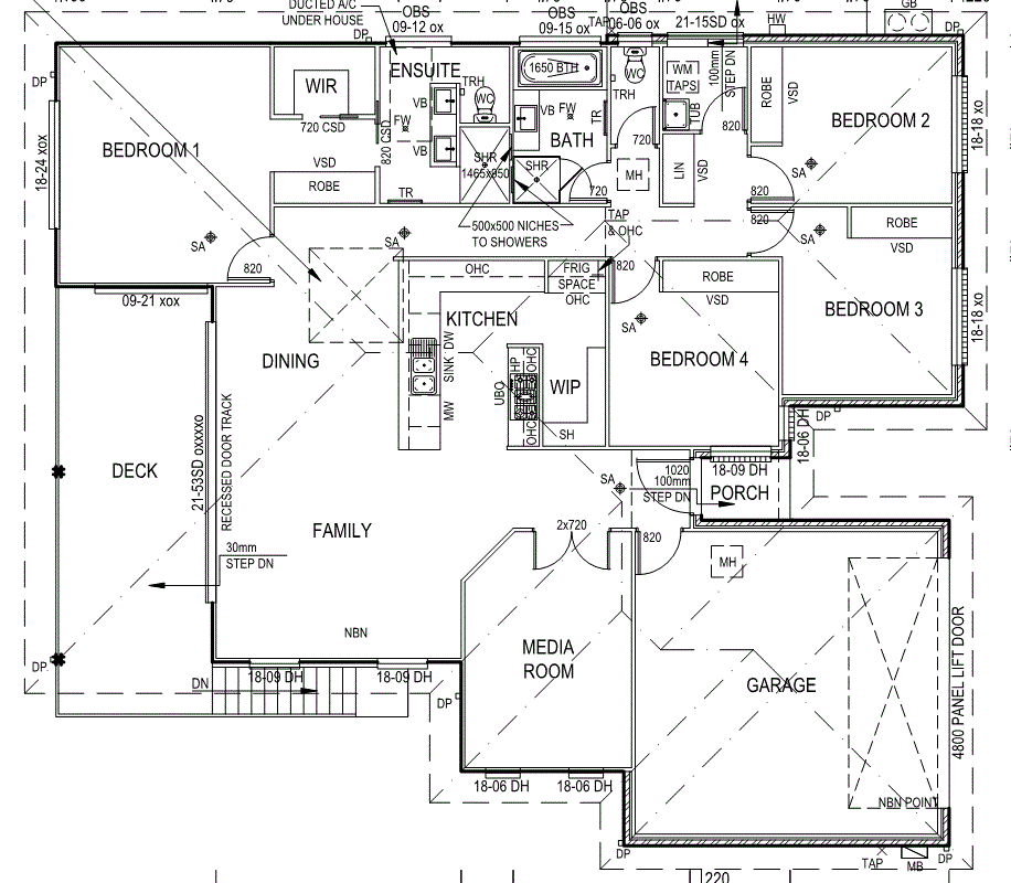
This house has the potential to grow beyond the current plan of 4 bedrooms and media room.

The design is very much open plan - to take advantage of the views.

There is a butlers pantry  and the kids bedrooms are clustered in their own wing.

There is still time to have input with colour schemes and even make some plan changes if needed.

The land is ready to build on and a visit is worthwhile.

Exceptional value like this wont last - don't delay in requesting a full list of inclusions

 

4 2 4 577 m2
Address 152 Cedar Creek Rd, Upper Kedron
Price SOLD for $699,000
Property Type Residential
Property ID 114
Category House And Land Package
Land Area 577 m2
Floor Area 231 m2

Agent Details

Steve Smith photo

Steve Smith

0408 192 669
View Profile