Sold

2 x sheds and 600sq.m block in Rothwell

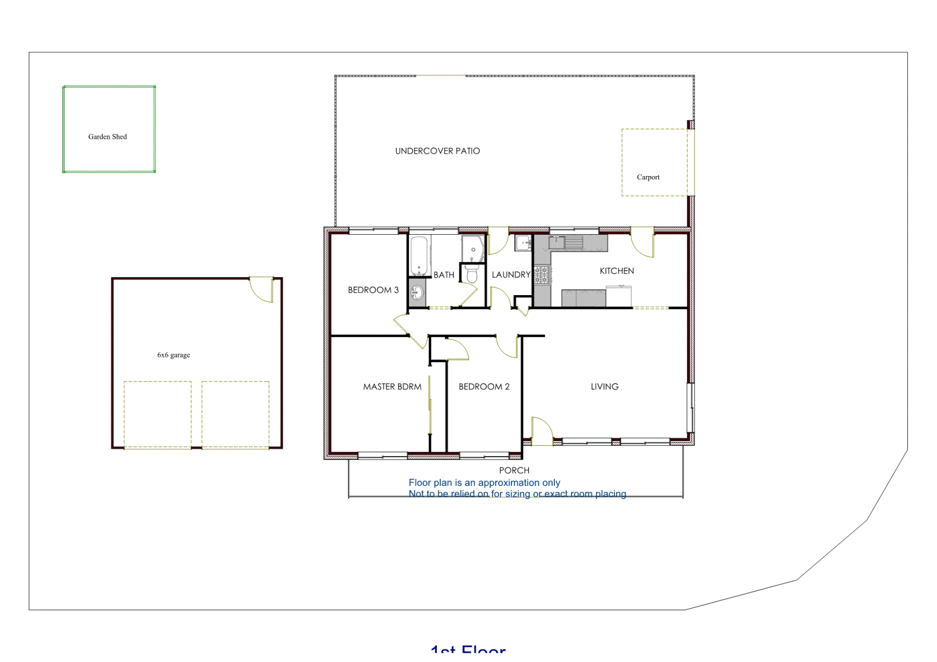
This corner lot 3 bedroom house presents immaculately and is versatile on so many fronts. Situated in an area of Rothwell with large wide streets, it has great street appeal with a quality brick fence, and charming front verandah for those sunset drinks. It is only a short walk to rail and schools.

The 3 bedrooms are of a decent size and larger than one would expect,  with 3m of sliding door robe to the main bedroom. There is one neat and tidy bathroom with a separate large powder room type vanity, a separate internal laundry, and a kitchen in excellent condition but perhaps in need of modernizing.

The home has been recently painted inside and new carpets installed.

This is a very comfortable home in very good clean condition and is complete with air conditioning to the master bedroom and the lounge/family.

It has two street frontage and two driveways, with access to an insulated and powered 6m x 6m shed from one driveway, and access to a carport with electric door and tandem parking for two cars from the other. In addition to the 6 x 6 shed there is another 3m x 3m shed. Both sheds are in as new condition.

The yard is fully fenced with quality fencing and is secure - perfect for kids and pets; and has a large pergola covered alfresco for entertaining. And still room for a pool!

 

 

 

Features

Verandah Courtyard Outdoor entertainment area Fenced Safety Switch Garage Remote Level Block Close to school
3 1 4 623 m2
Address 2 Lindsay Street, Rothwell
Price SOLD for $433,000
Property Type Residential
Property ID 155
Category House
Land Area 623 m2

Agent Details

Leonie Fassy photo

Leonie Fassy

0418766911
View Profile