Location - Land Size and Potential!

SNEAK PEEK ....... to this solid Queensland style high-set home on a large 776 sq.m. block, conveniently located close to shops, train and schools!!!!

The extra high ceilings, timber floors and combustion fireplace give this home the charm and coziness of yesteryear. Not to mention the magnificent backyard tree that would make for special lazy Sunday lunches and entertaining under the canopy.

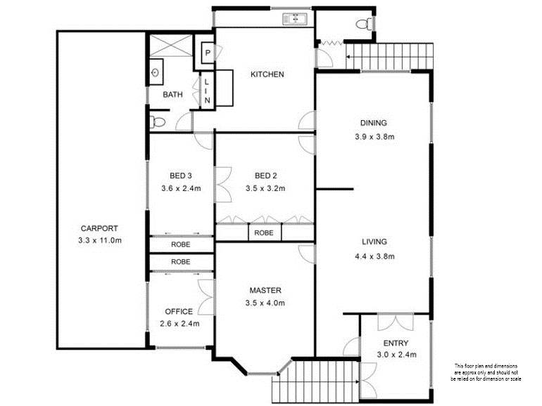
With plenty of room underneath the home for storage, and plenty of room in the back yard for a large shed, and a spacious kitchen and 2 toilets, this home is a comfortable and easy living family home.

MORE PHOTOS TO COME

Features:

Extra high ceilings

VJ paneling to walls

Timber floors

Ceiling fans

Firebox

2 toilets

A/C to lounge and Bed 1

2 car tandem carport

fully fenced

 

 

 

 

 

 

Features

Fenced Fireplace Pot-belly stove Safety Switch Smoke Alarms Level Block Close to school Study
3 1 3 776 m2
Address 8 Mcgrath Lane, Booval
Price SOLD for $370,000
Property Type Residential
Property ID 174
Category House
Land Area 776 m2
Floor Area 155 m2

Agent Details

Leonie Fassy photo

Leonie Fassy

0418766911
View Profile