LUXURY!! - SPACE!! - HOME BUSINESS - EXTENDED FAMILY

This unique home has been meticulously designed with luxury, space and function in mind!!!

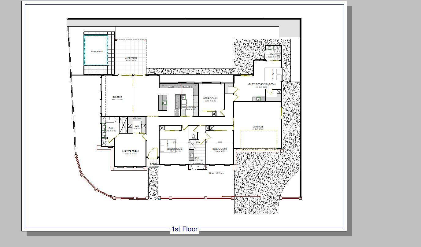
Large bedrooms, a separate area for a Granny Flat, or a teenagers retreat or a home office/business; an amazing butlers pantry, and spacious bathrooms with freestanding baths.  Everything cleverly placed and designed to take advantage of the lot which has a leafy outlook and unique courtyard design.

(There is space for a pool or shed and also parking for a boat or van.)

As this stunning home is yet to be built - we will allow you to adjust the plan to suit your specific needs and choose colours, fixtures and finishes to suit your own personal style.

Visit our on-site information centre to look through the home in our interactive 3d software and to walk over the lot and see the views.

Centre Open Sat, Wed, Thurs, Fri, 10-4

A full list of inclusions is available on request.

Floor plans and images are indicative only, conceptual in nature and subject to change. Floor plans and images may depict fixtures, fittings, inclusions, furnishings, pools and or other products that are not included in the house design or costings. 

 

Features

Outdoor entertainment area Granny flat Level Block Built-in wardrobe Air conditioning Reverse Cycle Air Conditioning Dishwasher Study
5 3 4 676 m2
Address 5/149 Workshops St, Brassall
Price SOLD
Property Type Residential
Property ID 292
Category House And Land Package
Land Area 676 m2
Floor Area 285 m2

Agent Details

Steve Smith photo

Steve Smith

0408 192 669
View Profile