Its all about Lifestyle!-Privacy and space and close to amenities

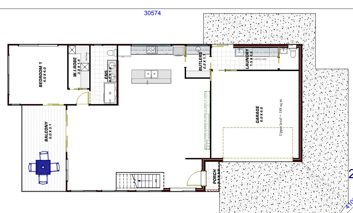
This home has been designed to take best advantage of the bush views and Northerly aspect. Imagine going about the daily routine and looking out to the view from the kitchen, living, dining, Master Bedroom and sitting on the deck with your invited guests in Privacy and looking in to the tree tops. There'll be plenty of "Ooohs and aaahs - you're so lucky".

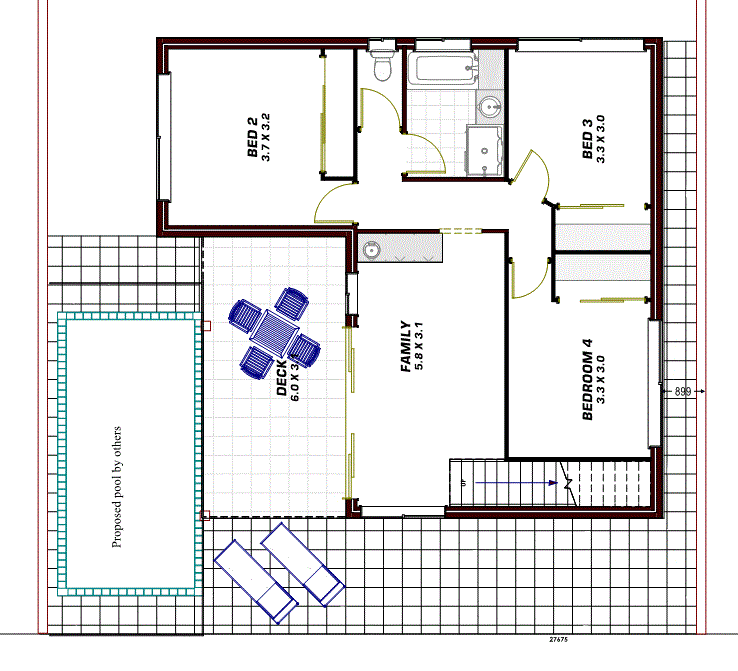
The design features don't finish with the upstairs. Downstairs you have the separate  kids zone. 3 bedrooms centered around another family room that opens out to the lower deck and pool area.   
As this is a house yet to be built you get to choose the fixtures and fittings to suit your style and have the opportunity to tweak the floor plan should you wish.
The package includes:
Walk in pantry
Two separate living areas
Air conditioning
Security screens
Driveway and paths
Energy efficient appliances and light fittings
Higher than normal ceilings
Timber look flooring to living areas.
A full list of inclusions is available on enquiry.
Don't delay as we are down to the last 2 lots in this boutique estate.
Floor plans and images are indicative only, conceptual in nature and subject to change. Floor plans and images may depict fixtures, fittings, inclusions, furnishings, pools and or other products that are not included in the house design or costings. The Building Estimate document will detail the extent of the inclusions allowed

Features

Deck Balcony Safety Switch Smoke Alarms Built-in wardrobe Air conditioning Dishwasher
4 3 4 913 m2
Address 30 Songbird St, North Ipswich
Price Contact agent for price Guide
Property Type Residential
Property ID 367
Category House And Land Package
Land Area 913 m2
Floor Area 291 m2

Agent Details

Steve Smith photo

Steve Smith

0408 192 669
View Profile