Just Listed

Larger Urban Lifestyle Lot

 This very large site provides the benefits and convenience of urban living in a bushland setting.
- Its western and northern boundaries abut public land so as to further enhance its rural qualities.

It is a sloping lot  but You will have an amazing private lifestyle, views, the ability to add a separate granny flat or second dwelling on a terrace. 

This package offers lifestyle and value.

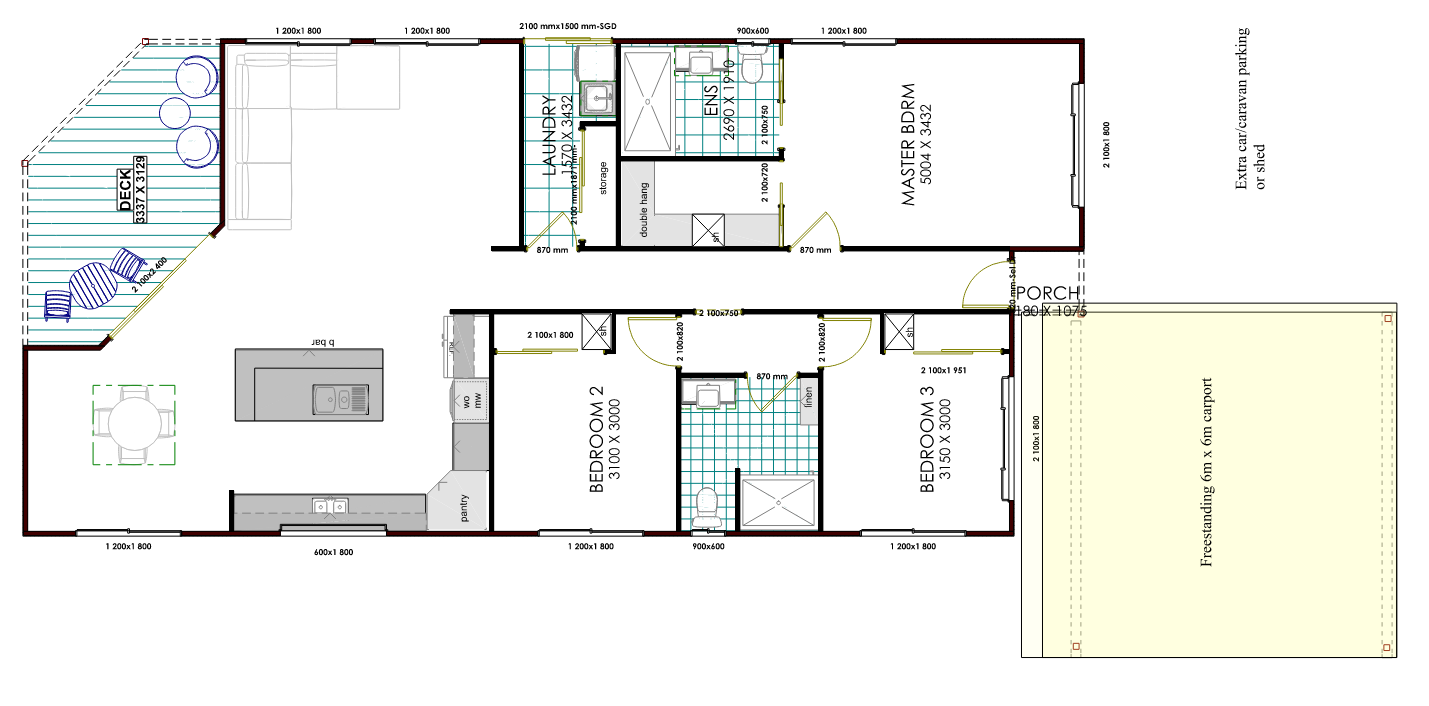
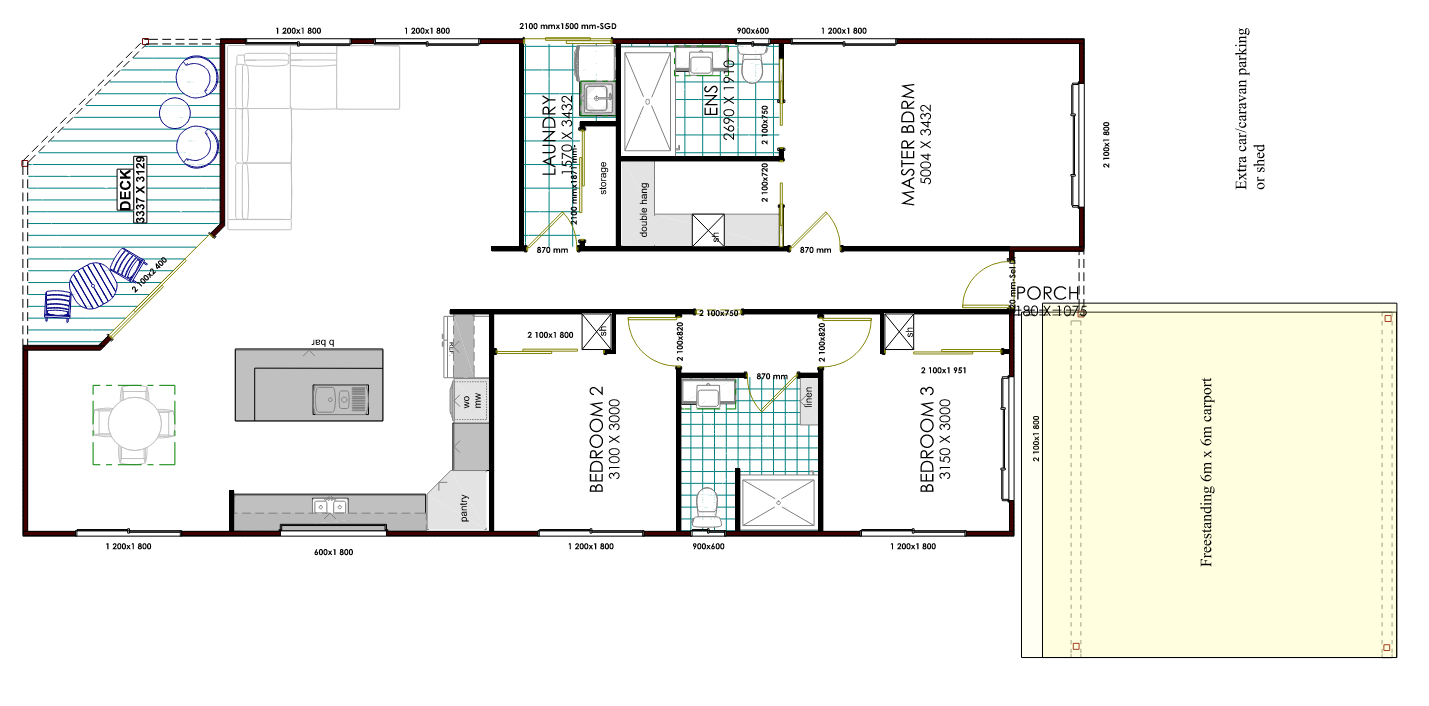
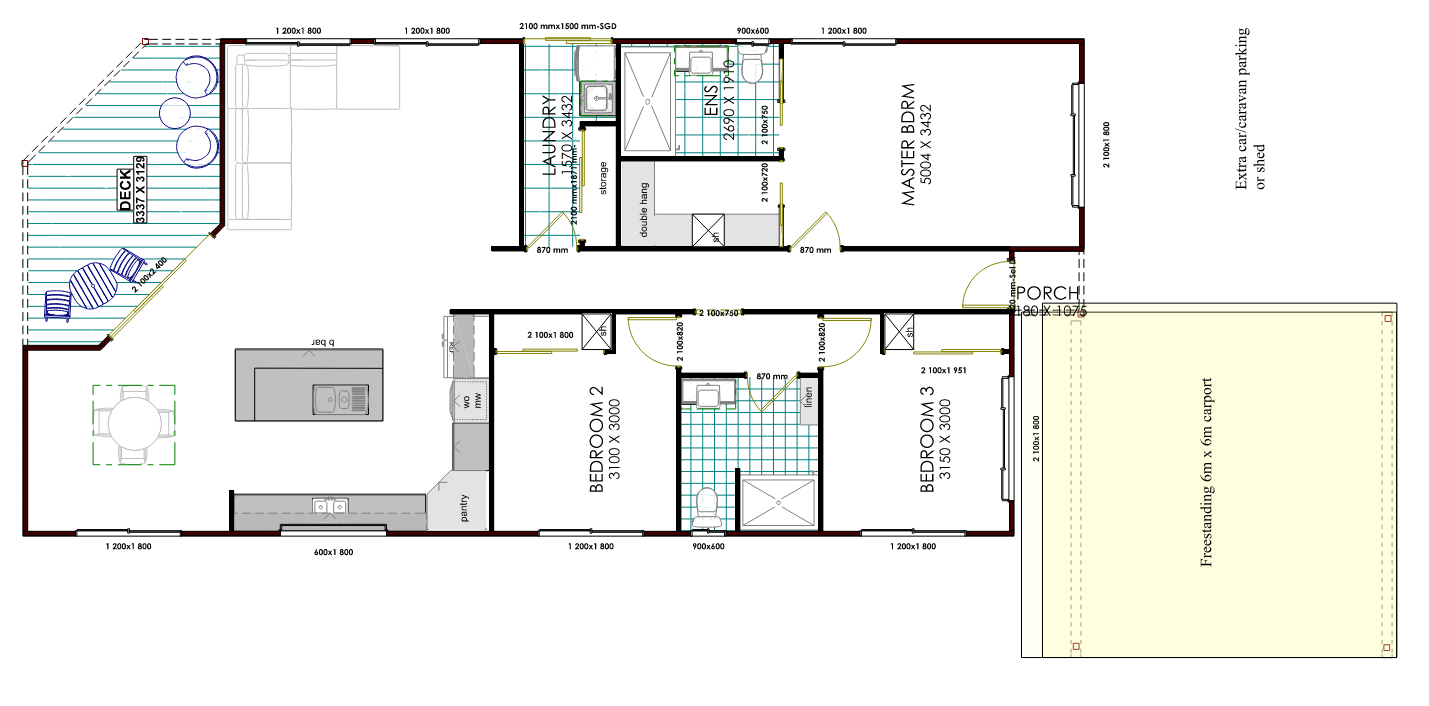
The house has been designed to sit on the upper level terrace  - and with the living and entertaining areas facing North to the views and trees.

There would be room for a 6 x 3m shed or caravan bay - or extra car parking if required.

The suggested floor plan is adjustable to suit your specific needs and being a house - yet to be built - you get to choose the colours, fixtures and fittings to suit your style.

The land is registered and you can visit and walk over the lot to get a first hand feel for how good life could be in your own bush retreat.

Drop me a line or give me a call for more information or to catch up and explore options.

 

Floor plans and images are indicative only, conceptual in nature and subject to change. Floor plans and images may depict fixtures, fittings, inclusions, furnishings, pools and or other products that are not included in the house design or costings. 

 

 

Features

Deck Barbecue Outdoor entertainment area Safety Switch Smoke Alarms Built-in wardrobe Air conditioning Dishwasher
3 2 3 2,863m2
Address TBA Songbird St, North Ipswich
Price From $950,000
Property Type Residential
Property ID 376
Category House And Land Package
Land Area 2,863m2
Floor Area 179m2

Agent Details

Steve Smith photo

Steve Smith

0408 192 669
View Profile